Toggle navigation
Overview Map
CAD
Image Gallery
Concourse - Exhibition Level
Hall A/B Lobby
Hall C Lobby
Hall E Lobby - Top of Escalators
Hall E Lobby
Hall E
Hall F Lobby
Hall F Prefunction
L1 Entry - Lower Lobby 1
L1 Entry - Lower Lobby 2
L3 - Bluffview Room
L3 Lobby - Top of Escalators
Lower Lobby C 1
Lower Lobby C 2
Lower Lobby C 3
Lobby D - Registration (Oculus) 1
Lobby D - Registration (Oculus) 2
Omni Hotel
Omni - Hotel Lobby 1
Omni - Hotel Lobby 2
Omni - L2 - Between Escalators
Omni - L2 - Offices by the Skywalk
Omni - L3 - Dallas Ballroom Prefunction
Omni - L3 - Top of Escalators
Omni - L5
Press Lounge - Room D171-173
Contact Us
Overview Map
Dallas Convention Center
Lower Level
Exhibit Level
Mezzanine Level
Omni Hotel Dallas
Level 1
Level 2
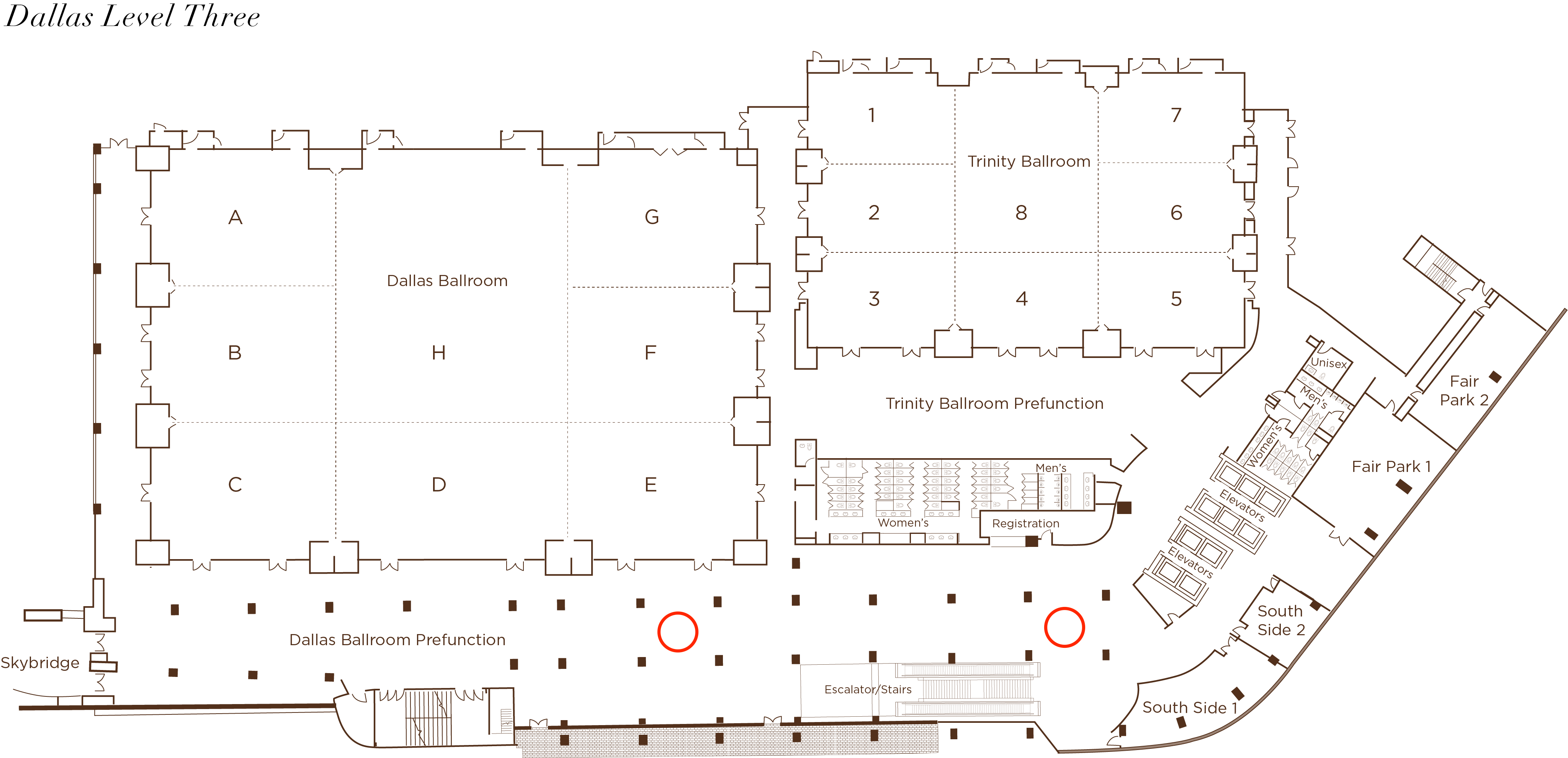
Level 3
Level 5